Shopping cart
0 items - € 0.00
Facebook Twitter
   

Hitler's Atlantic Wall (AS)

Hitler's Atlantic Wall (AS)
Author: Saunders, Anthony

Language: English


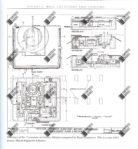
Description

Original title Hitler's Atlantic Wall (AS)
Author Saunders, Anthony
Languages English
Subject CF - Modern fortifications - 20th century
Period World War Two
Location Western Europe
Categories Photobooks, Textual books, Antiquarian books, Drawings, Plans and maps

Preview